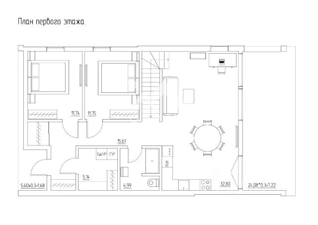
Код объекта: 1677195. Номер:14538. В продаже двухэтажный ДОМ 163.6 кв.м. на участке 16 соток Назначение участка - земли населенных пунктов, для индивидуального жилищного строительства. ДОМ: - фундамент на железобетонных сваях - сам дом выполнен из каркаса, утепление 200мм, шумоизоляция, ГВЛ в два слоя с перехлестом - терраса шириной 3 метра - пол стяжка 7см с системой отопления - тёплый пол, 7 контуров, в системе антифриз - окна 75 профиль, стекло толщина 6-8, мультипакет, панорамные окна (VЕКА) - все окна энергосберегающие - подсветка фасада дома раздельная - качественные входные двери "уличные" с терморазрывом, защитой от взлома и двойным замком - экономичный отопительный котёл, подогрев воды, электрокотел термекс 60л, сенсорное управление с возможностью регулировать температуру удаленно с телефона - система полного цикла водоснабжения и канализации ( станция биологической очистки) - установлена система вентиляции и кондиционирования воздуха - подключена система умный дом с терморегулятором и удаленным доступом - отделка стен: обои и покраска - натяжные потолки - межкомнатные двери, фурнитура с магнитными защелками - розетки, переключатели и выключатели Шнайдер - установлена новая качественная сантехника - подключен интернет wifi (телевизор, система умный дом) 1 этаж дома Большой зал со вторым светом, кухня-гостиная с панорамным видом, открытое пространство, две спальни, санузел, тех. комната (бойлерная, постирочная с сушилкой для белья), гардеробная, летняя терраса. 2 этаж дома имеет открытое пространство - эркер/кабинет и 2 просторные спальни с видом на лес, санузел, 2 балкона.



































































