Мы используем куки-файлы. Соглашение об использовании

Продается 1-комн. квартира, 35,2 м²

Общая площадь35,2 м²
Жилая площадь16 м²
Площадь кухни9,6 м²
Этаж6 из 11
Год постройки2022
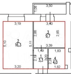
Продается уютная однокомнатная квартира площадью 35.2 кв. м на 6 этаже современного 11-этажного дома, построенного в 2022 году. Высота потолков составляет 2.65 метра, что создает ощущение простора. Квартира имеет удобную планировку с жилой площадью 16 кв. м и кухней 9.6 кв. м. Есть совмещенный санузел и лоджия, окна выходят во двор, что обеспечивает тишину и уют. подходит под семейную ипотеку . Квартира предлагается без ремонта, поэтому у вас есть возможность воплотить все свои дизайнерские идеи и создать пространство по своему вкусу. Это отличная возможность для тех, кто хочет создать свое идеальное жилье с нуля. Дом оснащен одним пассажирским и одним грузовым лифтом, что облегчает перемещение, особенно при переезде. Есть наземная парковка и пандус для удобного доступа. Дом расположен в новом районе с развитой инфраструктурой, где уже проведены все необходимые коммуникации. Рядом с домом находятся школы, детские сады, клиники и магазины, что делает его идеальным для проживания семей с детьми. Вся необходимая инфраструктура в шаговой доступности, поэтому можно сэкономить время на повседневные дела. Квартира продается по договору купли-продажи. Возможна ипотека. Все документы готовы к сделке, что позволяет быстро и без проблем оформить покупку. Отсутствие обременений гарантирует чистоту сделки. Приезжайте на просмотр! Звоните, чтобы записаться и оценить все преимущества этой квартиры своими глазами. Ждем вашего звонка!
Позвоните автору
Вам ответят на все вопросы

О квартире

Тип жилья

Вторичка

Общая площадь

35,2 м²

Жилая площадь

16 м²

Площадь кухни

9,6 м²

Высота потолков

2,65 м

Санузел

1 совмещенный

Балкон/лоджия

1 лоджия

Вид из окон

Во двор

Ремонт

Без ремонта

О доме

Год постройки

2022

Количество лифтов

1 пассажирский, 1 грузовой

Тип перекрытий

Нет информации

Подъезды

3

Придомовая территория

Двор без машин

Парковка

Наземная

Отопление

Нет информации

Аварийность

Нет

Юридические особенности

Несовершеннолетние собственники

Нет

Материнский капитал при покупке

Не использовался

Доступная среда

Вход в подъезд без порога
Есть пандус
Есть лифт от 90 см
Входная дверь 70-79 см
Двери в ванной и санузле 65-70 см
Двери в кухне и комнатах 65-70 см
Спросите умного помощника
Получите экспертное мнение о жилье

Расположение

Ипотечный калькулятор
  • Базовая
  • Семейная
  • ИТ-ипотека
  • 20%
  • 30%
  • 40%
  • 50%
лет
  • 10 лет
  • 20 лет
  • 30 лет
Загружаем предложения от застройщика и банков
Помощь риелтора
Проверенный риелтор поможет купить или продать квартиру
Автор объявления
ID 13999933
  • Документы проверены
  • 8 лет 3 месяца на Циане
  • 3 911 000 ₽
    Цена за метр
    111 108 ₽/м²
    Условия сделки
    свободная продажа
    Ипотека
    возможна
    Автор объявления
    ID 13999933
    Документы проверены