Мы используем куки-файлы. Соглашение об использовании
С мебелью

Продается 5-комн. квартира, 189 м²

Общая площадь189 м²
Жилая площадь118 м²
Площадь кухни26,6 м²
Этаж5 из 7
Год постройки2016
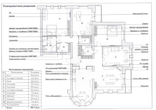
Представляем вашему вниманию эксклюзивную пятикомнатную квартиру площадью 189 кв. м на пятом этаже современного семиэтажного кирпичного дома 2016 года постройки. Это не просто жильё, а продуманное пространство для жизни, работы и инвестиций, где каждая деталь работает на ваш комфорт и статус. Локация и инфраструктура — центр города, комфорт для всех Квартира расположена в центре Вологды — в одном из самых престижных и востребованных районов города. Здесь всё под рукой для комфортной жизни, бизнеса и отдыха: - Образование: в шаговой доступности — престижные школы 8 и лицей 32, а также современные детские сады. - Спорт и досуг: стадион Динамо, фитнес-центры, прогулочные зоны — всё для активного образа жизни и развития детей. - Удобство: рядом магазины, аптеки, деловые и торговые центры — всё необходимое для комфортной жизни и работы. Планировка и пространство — премиум-класс для вашей семьи или бизнеса - Общая площадь: 189 кв. м (118 кв. м — жилая). - Пять изолированных комнат (29,4 + 22,2 + 20,7 + 20,3 + 25,4 кв. м) — возможность организовать кабинет, детскую, гостевую, столовую и личное пространство для каждого члена семьи. - Кухня-гостиная: 26,6 кв. м — идеальное место для семейных ужинов, встреч с партнёрами или друзьями. - Две лоджии — зона для отдыха или хранения. - Два совмещённых санузла — удобство для большой семьи или приёма гостей. Дизайнерский ремонт — инвестиция в комфорт и стиль Квартира выполнена с использованием премиальных материалов и современных инженерных решений. Окна выходят на улицу и во двор, обеспечивая отличное естественное освещение и приватность. Для семей с детьми Развитая инфраструктура центра города создаёт все условия для гармоничного развития детей: рядом лучшие образовательные учреждения, спортивные секции и безопасные зоны для прогулок. Для бизнес-профессионалов Просторная кухня-гостиная и изолированные комнаты позволяют организовать домашний офис или кабинет для работы, а престижная локация в центре города — подчеркнуть ваш статус. Для инвесторов Объект премиум-класса в центре Вологды — это ликвидная инвестиция с высоким потенциалом роста стоимости и возможностью сдачи в аренду бизнес-классу или семьям с детьми. Звоните прямо сейчас! Мы гарантируем безопасную сделку, полное юридическое сопровождение и индивидуальный подход к каждому клиенту. Запишитесь на просмотр — ваша новая жизнь в премиум-классе начинается здесь!
Позвоните автору
Вам ответят на все вопросы

О квартире

Тип жилья

Вторичка

Общая площадь

189 м²

Жилая площадь

118 м²

Площадь кухни

26,6 м²

Санузел

2 совмещенных

Балкон/лоджия

2 лоджии

Вид из окон

На улицу

Ремонт

Евроремонт

Продаётся с мебелью

Да

О доме

Год постройки

2016

Количество лифтов

1 пассажирский

Тип дома

Кирпичный

Тип перекрытий

Железобетонные

Подъезды

4

Придомовая территория

Шлагбаум

Парковка

Наземная

Отопление

Котел/Квартирное отопление

Аварийность

Нет

Газоснабжение

Центральное

Юридические особенности

Несовершеннолетние собственники

Есть

Материнский капитал при покупке

Не использовался

Доступная среда

Вход в квартиру без порога
Есть лифт от 90 см
Входная дверь от 80 см
Двери в ванной и санузле от 80 см
Двери в кухне и комнатах от 80 см
Спросите умного помощника
Получите экспертное мнение о жилье

Расположение

Ипотечный калькулятор
  • Базовая
  • Семейная
  • ИТ-ипотека
  • 20%
  • 30%
  • 40%
  • 50%
лет
  • 10 лет
  • 20 лет
  • 30 лет
Загружаем предложения от застройщика и банков
Помощь риелтора
Проверенный риелтор поможет купить или продать квартиру
33 400 000 ₽
Цена за метр
176 720 ₽/м²
Условия сделки
альтернатива
Ипотека
возможна
Агентство недвижимости
Документы проверены
Риелтор