Мы используем куки-файлы. Соглашение об использовании
Квартира свободной планировки, 208 м²

Продается квартира свободной планировки, 208 м²

Общая площадь208 м²
Этаж5 из 5
Год сдачи2027
ДомНе сдан
ОтделкаНет информации
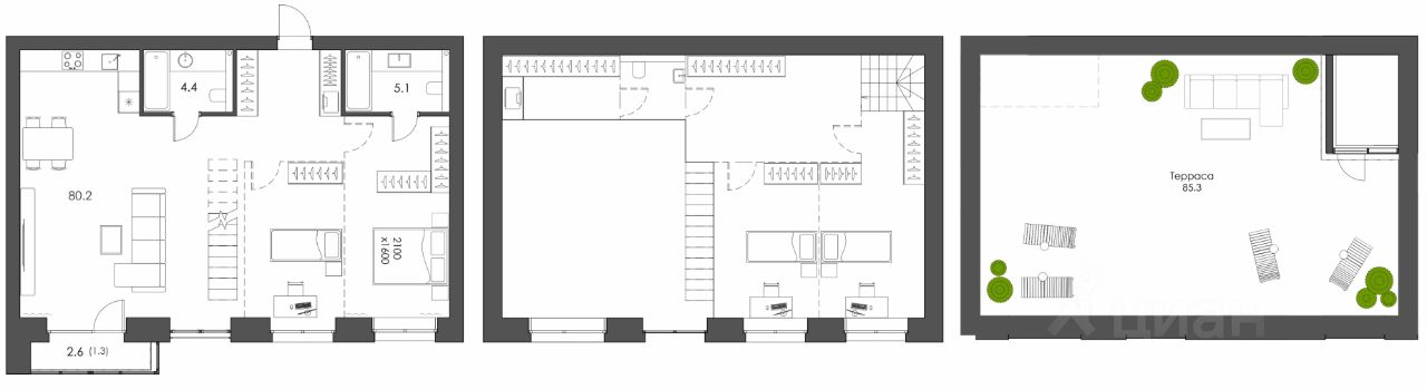
Трёхуровневая квартира с террасой на крыше — 208 м² свободного пространства в жилом комплексе "Витязь" от застройщика ЧерриДом. Такая квартира в доме в продаже одна. Уникальный формат для Вологды — ничего подобного в городе больше нет. Три этажа, которые принадлежат только вам. Свободная планировка — вы сами решаете, где будет спальня, где кабинет, а где гостиная на два этажа. Потолки 5,6 метра. Внизу — клубный дом на 4 этажа, где все знают друг друга. Вы спускаетесь во двор, дети играют на площадке, машина стоит в собственном гараже. Это не квартира в обычном понимании — это частный дом внутри города. Терраса на крыше — ваш личный этаж под открытым небом Солнечным утром — кофе на террасе. Днём — йога на свежем воздухе или книга в шезлонге. Тёплым летним вечером — ужин с друзьями, просмотр кино под открытым небом или собственный парк с цветами и зеленью. В выходные — завтрак с семьёй, когда никуда не нужно спешить. Это полноценное пространство — и вы делаете с ним всё, что позволит ваше воображение. Что вы получаете в "Витязе" Архитектура, которую видно издалека Кирпичный фасад с кладкой "кольчуга" — не типовая коробка, а дом с характером. Входные группы с тёплыми витражами. Настоящая тишина в квартире Межквартирные стены — керамический кирпич от 380 мм. Это не маркетинговая "улучшенная шумоизоляция", а реально тихо. Усиленная стяжка пола с звукоизоляцией — соседей вы не услышите. Двор, в котором проводят время Закрытая территория без машин. Вишнёвый сад, липы и берёзы, хвойные растения круглый год. Качели, подвесные гамаки, детская площадка с лабиринтом-викингов и стилизованные скалодромы в виде семьи витязей. Прогулочные аллеи с арт-объектами. Вечером включается мягкая подсветка — двор, куда хочется выходить каждый день. Рядом — Ковыринский сад и спорткомплекс "Витязь" Прогулочные зоны с живописным прудом — в пяти минутах пешком. Бассейн, стадион, хоккейные площадки, корты — детям есть куда расти, а вам есть где провести выходные всей семьёй. Инженерия, о которой не нужно думать Горизонтальная разводка отопления — нет стояков в квартире, каждая батарея регулируется. Индивидуальная вентиляция — никаких запахов от соседей. Умные счётчики — показания передаёт управляющая компания. А так же: IP-домофония и видеонаблюдение — контроль доступа со смартфона из любой точки мира.Энергосберегающие окна — тепло зимой, прохладно летом.Бесшумный грузопассажирский лифт.Колясочные и велосипедные на первом этаже. Квартира 25 | 5 этаж | 208 м² | свободная планировка "Витязь 4" продолжает уже сформированный квартал. Школы, садики, супермаркеты, остановки транспорта — всё в пешей доступности. Семейная ипотека — 6% Покупка по 214-ФЗ через эскроу-счёт в Сбербанке. Запишитесь на экскурсию — покажем всё за час

О квартире

Тип жилья

Новостройка

Общая площадь

208 м²

Высота потолков

2,68 м

Отделка

Нет информации

О доме

Тип дома

Кирпичный

Понравилась квартира — узнайте о ней больше

Застройщик ответит на все вопросы

О ЖК «Витязь»

  • Сдача комплекса
    Сдача в 4 кв. 2027, есть сданные
  • Застройщик
    ЧерриДом
  • Класс
    Бизнес
  • Тип дома
    Кирпичный
  • Парковка
    Гостевая
  • Отделка
    -
  • Тип комплекса
    Жилой комплекс
Похоже на то, что вы ищете?

Особенности жилого комплекса

  • Архитектура

Подробнее о жилом комплексе

Акции в ЖК «Витязь»

Узнайте про персональные условия и дополнительные скидки при покупке квартиры у застройщика

Материнский капитал

Ипотечный калькулятор
  • Базовая
  • Семейная
  • ИТ-ипотека
  • 20%
  • 30%
  • 40%
  • 50%
лет
  • 10 лет
  • 20 лет
  • 30 лет
Загружаем предложения от застройщика и банков

Расположение

Корпус проверен наш.дом.рф
Обновлено 8 апреля 2026
  • Нет в реестре проблемных объектов
  • Застройщик не банкрот
  • Есть эскроу счёт
  • Актуальные фото стройки

Ещё квартиры в жилом комплексе

45 квартир в продаже · Сдача в 4 кв. 2027, есть сданные
Автор объявления

Застройщик «ЧерриДом»

Надежный застройщик
Общество с ограниченной ответственностью «ЧерриДом»
32 240 000 ₽
Цена за метр
155 000 ₽/м²
Условия сделки
долевое участие (214-ФЗ)