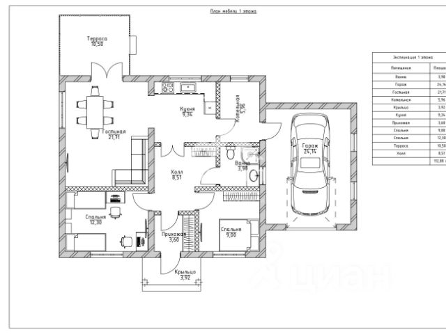
ДОМ МЕЧТЫ В ЮЖНОЙ ЧАСТИ ГОРОДА Этот шикарный просторный дом общей площадью 261,9 м2 имеет очень удачное расположение в непосредственной близости: школа N1 детский сад Родничок (единственный в городе с бассейном) подъездная дорога с асфальтовым покрытием В шаговой доступности центр города, магазины, ТЦ, спортивные учреждения и сооружения, медицинские учреждения, салоны красоты, остановки общественного транспорта и многое другое. Дом построен из бруса 150*200 мм на блочном фундаменте, обшит металлическим сайдингом. На двух этажах дома располагаются: 4 уютные спальни 2 продуманных санузла просторная кухня с выходом на террасу Третий мансардный этаж можно оборудовать по вашим интересам, например, разместить спортивные тренажеры в подвальном помещении вместительная комната для хранения Входная группа и зона парковки оборудованы навесом, где с комфортом можно разместить несколько автомобилей. Также есть гараж. Участок 11,5 соток разработан под ведение садоводства (теплицы, грядки) и даже животноводства - есть действующий курятник При этом большая часть территории, покрытая газоном, саободна для проведения досуга (барбекю, летние развлечения и тд). покупателю остаётся вся мебель и полностью оборудованная кухня дом подходит под льготную программу Сельская ипотека Продаю дом в Вологодской области, кол-во спален: 4.
Купить дом в Вологодской области, комнат: 4
Дом построен из бруса в 2 этажа, отопление газовый котел, 1-этаж: большая кухня гостиная, спальня, комната для гостей, гардеробная, бойлерная, везде теплые полы. 2-этаж санузел, две комнаты отопление радиаторы. в доме выполнен дизайнерский ремонт, вся мебель и техника остаются. на участке теплица 8 метров, и 2 грядки с клубникой, есть кусты с ягодами. дом огорожен забором с электрическими откатными воротами, видеонаблюдение. в подарок большой бассейн. Дом построен из качественных материалов, строили для себя, продажа в связи с переездом в другой город,реальному покупателю торг. Коттедж, кол во спален - 4.
Продам дом на берегу реки Сухона в с. Шуйское (Междуреченский муниципальный округ) 94 км от Вологды. Площадь 268 кв.м. Центральное отопление, центральное водоснабжение, канализация, электричество. Асфальтированная дорога до дверей! В доме два корпуса с отдельными входами, второй этаж. Местная достопримечательность. Рядом вся инфраструктура! 1 взрослый собственник! Код пользователя: 35762 Номер в базе: 960139
Продается замечательный дом в живописном Кадникове, идеально подходящий для комфортного круглогодичного проживания! Этот дом — настоящая находка для ценителей уюта и природы. Каждая деталь здесь продумана и сделана с любовью. На ухоженной территории вас ждет плодоносящий сад, где растут яблони, груши и малина, вишня, два вида слив, а также множество цветников, которые радуют глаз с ранней весны до поздней осени . Для вечернего времени продумано точечное освещение сада . Для отдыха и досуга предусмотрен комплекс из кирпичной бани и уютной беседки, где можно проводить время с семьей и друзьями. Надежная теплица с кирпичными столбами и стеклянными перекрытиями позволит вам наслаждаться овощами и зеленью . Кроме того, на участке есть большая емкость для накопления воды, небольшой курятник и множество других удобств. Сам дом выполнен из качественного бревна и обшит вагонкой, что создает атмосферу тепла и уюта. На первом этаже расположены просторный зал, кухня, две уютные спальни, совмещенный санузел, кладовая и веранда, где приятно проводить утренние часы с чашкой кофе. На втором этаже находится светлая жилая комната, которая может стать вашим личным кабинетом или игровой зоной для детей. Отопление осуществляется с помощью кирпичной печи, а система отопления разведена по всему дому, что обеспечивает комфорт в холодное время года. Водоснабжение — центральное, а канализация — септик. Под домом расположен большой подпол, идеально подходящий для хранения овощей и других запасов. Этот дом — ваш шанс на комфортную жизнь вдали от городской суеты! Не упустите возможность стать владельцем этого прекрасного уголка природы! Звоните и записывайтесь на просмотр уже сегодня! Код пользователя: 82605 Номер в базе: 2463079
Прекрасное предложение для тех кто ищет тихий уголок для проживания. В продаже прекрасный двухэтажный дом площадью 216 м. и 14 соток находится в 15 км от Вологды в экологически чистом уголке Вологодского района коттеджном поселке.15 минут от Вологды на автомобиле.Рядом горнолыжный комплекс Фристайл в 3 км. от дома.Дом - 1)Фундамент-монолитная лента шириной 60см и высотой 1 метр на буронабивных сваях. 2) Стены-газобетон 400мм 3) Перекрытия- пустотелые плиты 15см толщиной 4) Кровля-утеплитель 250мм мин. вата. Финская металлочерепица 5) Наружняя отделка-имитация бруса 37мм толщиной и покрыта краской Тиккурила. В доме сделан хороший косметический ремонт.Отопление газовое. Вода скважина. Канализация септик.Дом в два этажа. 1 этаж -кухня гостиная,спальня,санузел,гардеробная,помещение оборудованное для газового котла.Терраса. 2 этаж 3 спальни,детская ,гардеробная,санузел. Территория огорожена. Гараж на две машины.Баня. Дом готов к сделке. Вся дополнительная информация по телефону.Показы по договоренности. Код пользователя: 28041 Номер в базе: 236690
К вашему вниманию просторный двухэтажный дом общей площадью 238 м.кв., расположенный в живописном Междуреченском районе, в уютной деревне Дор. Этот дом - идеальное место для тех, кто ищет уединение и тишину, но при этом не желает отказываться от комфорта. Первый этаж дома выполнен из кирпича, что обеспечивает прочность и долговечность, второй этаж - из бревен, что придаёт дому особый шарм и уют. Благодаря большому количеству окон, в доме всегда много света и воздуха. Удобное печное отопление обеспечит комфортную температуру в холодные зимние дни. Дом подключен к электросети. Дом требует ремонта, что предоставляет вам отличную возможность преобразить его по своему вкусу и сделать по-настоящему уникальным. Земельный участок площадью 4 сотки, на котором расположен дом, ждет своего хозяина, который сможет превратить его в райский уголок. Всё в собственности, межевание не проведено. Также в стоимость включены дополнительные 13 га земли сельскохозяйственного назначения. Расстояние до Вологды составляет всего 86 км, что позволяет быстро добраться до города при необходимости. Если у вас возникли вопросы или вы хотите узнать больше - звоните! Мы будем рады ответить на все ваши вопросы и помочь вам сделать правильный выбор. Код пользователя: 24661 Номер в базе: 224696
Продается жилой дом, общей площадью 110,6 квадратных метров, расположенный в деревне Черепаниха на берегу реки Сухона. Дом двухэтажный. На первом этаже расположена кухня, комната и санузел. На втором этаже комната отдыха с бильярдным столом. К дому пристроена баня. Дом на ленточном фундаменте. Изготовлен из бруса, обшит имитацией бруса снаружи и вагонкой изнутри. Крыша покрыта профнастилом. Водоснабжение из скважины, Канализация - септик. Отопление автономное от электрического котла. Сделана разводка по дому. Есть современный чугунный камин. Участок площадью 8,55 соток находится в долгосрочной аренде. Участок обнесен забором из профнастила. На участке оборудована волейбольная площадка. До реки Сухона 100 метров. Код пользователя: 82605 Номер в базе: 3801134
Продается великолепный двухэтажный дом площадью 160 кв.м., расположенный на живописном участке в 30 соток в селе Кубенское Вологодского района, всего в 30 км от города. Это идеальное место для комфортной жизни вашей большой семьи и отличная возможность для инвестиций в аренду в туристический сезон! К дому обеспечен круглогодичный доступ, а дорога в отличном состоянии, что делает его идеальным вариантом для постоянного проживания или дачного отдыха. Построенный из качественного бруса, дом полностью готов к проживанию и оснащен всеми необходимыми коммуникациями: газовое отопление с индивидуальным котлом, биометаллические радиаторы, надежная система канализации с септиком и собственная скважина глубиной 60 метров. Участок правильной формы, ровный и сухой, станет отличной основой для создания уютного сада и зоны для отдыха. На территории вы найдете баню, два гаража, зону для барбекю, теплицу и сарай, а также гостевой дом площадью 100 кв.м., который в настоящее время используется как мастерская. Все это добавляет удобства и комфорта вашему отдыху и жизни. Не упустите уникальную возможность стать владельцем этого замечательного дома! Звоните прямо сейчас, и я с радостью отвечу на все ваши вопросы и организую просмотр. Ваш новый дом ждет вас! Код пользователя: 29884 Номер в базе: 3784725
площадь: 320кв.м, тип сделки: продажа, комнатность: 4, цена: 27000000, Подъездная дорога: Асфальт, дом в собственности: Да, Облицовка: Штукатурка, тип дома: Дом, Электричество: Кабель заведен в дом, Лесной массив: На участке, газ: Проходит по улице, Отопление: Нет, Утеплитель: Пенополистирол, площадь участка: 50соток, Участок оформлен: В собственности, Ближайший водоем: Река, Расстояние до водоема: До 200 м, Канализация: Септик, Недострой: Нет, Материал стен: Кирпичные, Водоснабжение: Скважина. Код пользователя: 24661 Номер в базе: 7349426
В продаже замечательный бревенчатый дом 190м2 на участке 19 сот. В нём расположено всё, что нужно для загородного отдыха/круглогодичного проживания. 4 спальни, 2 гаража ( один из которых подойдёт даже для больших машин). В дом заведён газ, поставлен газовый котёл. Сделан септик. На участке помимо дома расположены следующие постройки: Баня ( 3 года назад была построена ), теплица, 2 дровяника. Свет заведён в дом, в большинстве комнат сделан легкий косметический ремонт, при необходимости оставим всю мебель и технику, которую Вы могли увидеть на фотографиях. Дом зарегистрирован, участок размежован. 1 взрослый собственник, без долгов/обременений. Быстрый выход на сделку. Код пользователя: 116628 Номер в базе: 980922
Усадьба расположена в экологически чистом месте на берегу озера Заробозеро в Белозерском районе Вологодской области, в 270 метрах к югу от деревни Семкино. Участок площадью 90 соток окружен лесом, богатым грибами и ягодами, и предлагает уединенный отдых в живописной природной зоне. Близость к озеру открывает возможности для купания, катания на лодке летом и гонок на снегоходах зимой. Рыбалка в озере разнообразна по видам рыбы, а благоустроенная мангальная зона с беседкой позволяет готовить улов на месте. На территории расположены два жилых дома общей площадью 818 м² и баня 140 м². Основной дом — трехэтажный кирпичный с подвалом и чердаком. Подвал оснащен системой отопления (газовые и электрические котлы, дровяная печь), очисткой воды, бойлером на 400 литров, аварийным питанием от АКБ и газовым генератором. На первом этаже — прихожая, каминный зал на 30 человек, кухня с газовой плитой и техникой, две спальни, душ, туалет и русская печь. Второй этаж включает просторный зал, четыре спальни, две комнаты со вторым светом, балкон и санузел. Чердак утеплен, крыша вентилируемая, стены толщиной 40 см с пеноплексом. Дополнительно — холодная мансарда, три входа, две емкости для привозного газа по 9 м, собственная подстанция на 45 кВт и подземная линия электропередачи 450 метров. Второй дом каркасный, площадью 202 м², с дровяным отоплением и электроконвекторами. На первом этаже — гараж с рольставнями, ремонтная зона, котельная и стиральная машина. Второй этаж включает санузел, душевую, кухню-гостиную и три спальни. Балкон проходит по периметру дома. Баня из бревен диаметром 40 см оборудована русской печью, мойкой, парной с финской печью Harvia, а на втором этаже — три комнаты для размещения до 10 человек и балкон с видом на озеро. Вода подается из скважины глубиной 118 метров, в домах установлены септики, в бане — система водоотвода в грунт. Участки оформлены в собственность и долгосрочную аренду на 49 лет. Транспортная доступность обеспечена подъездными дорогами, интернет подключен через МТС. Объект подходит для круглогодичного проживания или сезонного отдыха с возможностью размещения большой компании. По запросу предоставляется видеообзор для детального ознакомления. Код пользователя: 64900 Номер в базе: 4879148
Дом, который станет любимым! Уютный кирпичный дом в коттеджном посёлке Алексино (Прилуки). Непосредственная близость к городу, прекрасная транспортная доступность - ходят 4 городских автобусных маршрута, школа, детский сад, Магнит, Озон, Вайлдберриз, Улыбка радуги, детские кружки и секции в шаговой доступности, все городские доставки ездят без проблем, но при этом сельский тариф на электроэнергию, налог в 10 раз ниже чем в городе, страховка на машину дешевле примерно в 2 раза, а до центра Вологды на машине можно добраться за 10-15 минут. У нас тихо и спокойно на улице, очень хорошие соседи. А так же отдаленность от крупных трасс, чистый воздух и безопасность продуктов, выращенных на своём огороде. Удачная планировка. На первом этаже дома просторный холл, большая светлая гостиная 30 кв.м. с эркером и панорамным остеклением, а также кухня 14 кв. м. Из кухни имеется второй выход из дома в сторону сада. Можно пристроить веранду, чтобы завтракать на природе. Также на первом этаже имеется просторный санузел 6 кв.м. и прачечная, под лестницей оборудована вместительная зона хранения. Высота потолков более 3 метров. На втором этаже 4 комнаты 13, 14, 23 и 11 кв.м. и санузел с душевой. Со второго этажа сделана лестница на чердак,на чердаке можно встать в полный рост, туда выведены трубы отопления и электрический кабель. Площадь чердака не входит в указанную площадь дома. Дом выполнен из красного керамического кирпича, перекрытия - бетонные плиты. Крыша - натуральная черепица Braas, которая обладает максимальным сроком эксплуатации из всех ныне существующих кровельных материалов - более 100 лет и обладает меньшей теплопроводностью, зимой помогает вам сохранять тепло, летом гораздо меньше нагревается, чем крыша из других материалов, кроме того более устойчива против ветровой нагрузки. Фундамент из бетонных блоков на песчаной подушке, смонтирован ниже зоны промерзания для Вологодской области (как под многоэтажки). Отопление газовое, от двухконтурного итальянского котла Baxi luna 3, включается и отключается, а также регулируется температура по вашему желанию, плюс низкие коммунальные платежи. Дополнительно меется резервный твердотопливный котел длительного горения. Кроме батарей отопления, по всему первому этажу сделан водяной теплый пол. Водоснабжение скважина, есть возможность подключить центральный водопровод, но нам это было не актуально. Участок правильной формы, ровный, ухоженный с хорошим плодородным слоем. Посажены яблони разного срока созревания, груши, вишни, сливы, алыча, облепиха, жимолость, ирга, боярышник, красная и желтая малина, крыжовник, красная, белая и черная смородина, клубника и земляника, фундук, черноплодная рябина. Большое количество декоративных деревьев , кустарников и цветов: кедры, туи, пихта, декоративные карликовые хвойники, клематисы, ирисы, гортензии, розы, барбарисы, множество первоцветов. С ранней весны и до поздней осени всегда что-то цветет. На участке есть песочница, горка, качели и большой двухэтажный детский домик.
Продается кирпичный дом для круглогодичного проживания. Площадь дома 250 кв.м. Внутренняя отделка гипсовая штукатурка "Волма слой". Потолки натяжные, французский материал. Фундамент блочный . Перекрытия ж/б плиты. На первом этаже веранда, кухня, гостиная, спальня, санузел. На втором этаже 2 комнаты, санузел, технические помещения. Отопление электрокотел, Горячая вода водонагреватель. Водоснабжение скважина. Дренажная и ливевая канализация организована отдельно в ливневой коллектор. Кроме того на участке имеется баня из осинового бруса, Гараж на 3 машиноместа, дровенник с хозпомещением. На территории сад на 30 плодовых деревьев, кустарники, малина, клубника. Небольшой огород, теплица 36 м, пруды для полива. Код пользователя: 36450 Номер в базе: 505842
В продаже бревенчатый дом площадью 87,1 м2 с гаражом в пос. Юбилейный на участке 15,5 соток. Дом сделан из оцилиндрованного бревна диаметром 24 см и покрыт пропиткой тиккурила. Год постройки 2018. Крыша металлочерепица, сваи железо-бетонные, окна установлены. Дом новый никто не жил. Газ заведен в дом, стоит счётчик. Разводка отопления сделана по всему дому. Электричество также заведено в дом. Централизованный водопровод проведен до дома, остается только подключить. Также на участке есть колодец. Есть станция биологической очистки, рассчитанная на 5 человек, её нужно установить. Дом требует внутренней отделки. Гараж также сделан из оцилиндрованного бревна диаметром 18 см , размеры 7,5*5,5 м( 42 м2). В гараже оборудована смотровая яма. Дорога до поселка асфальт, до участка круглогодичный подъезд. До реки Сухона расстояние всего 4 км. 2 взрослых собственника, документы в порядке. Торг возможен. Остались вопросы звоните Код пользователя: 27882 Номер в базе: 1777327
Представляем Вашему вниманию превосходный жилой дом с земельным участком 6 соток. Дом оборудованн автономным газовым отоплением. Этот двухэтажный дом общей площадью 196.1 кв.м. дополнен цокольным этажом, предлагает Вам простор и уют. Внутри дома Вас ждут ЧЕТЫРЕ светлые лоджии, СЕМЬ изолированных комнат, ДВЕ функциональные кухни и ТРИ санузла. Для отдыха и развлечений предусмотрена бельярдная размером 68, а также уютная веранда и крыльцо с навесом. Дом оснащен постирочной, мастерской и котельной. Стены дома изготовлены из силикатного кирпича толщиной 60см, что обеспечивает отличную теплоизоляцию. Высота фундамента составляет 2 метра, благодаря чему дом надежно защищен от подтопления. Межэтажное перекрытие выполнено из железобетонных плит, а лестничные марши и площадки из металла. Полы деревянные, покрытие - Ковралин, что создает дополнительный комфорт. Кровельное покрытие крыши выполнено из железа, что гарантирует его долговечность. В доме установлены пластиковые стеклопакеты, межкомнатные двери и натяжные потолки. Отопление газовое, обеспечивается напольным газовым котлом и действующей печью-камином. Горячее водоснабжение осуществляется с помощью газовой колонки. Канализация и водоснабжение центральное. Электроснабжение - ТРИ фазы. Установлены счётчики. На участке расположены хозяйственные постройки: баня 3*5 и беседка 3*6 на фундаменте, разделенная на ДВЕ зоны - летнюю и тёплую. Установлен Бассейн. Выложена прочная площадка 6*6 из бетонной тротуарной плитки. Территория участка ровная и сухая. Забор деревянный по всему периметру. Рядом расположены школа, магазины, санаторий Каменная гора, река Колпь, остановка общественного транспорта. Вся мебель, бытовая техника, бассейн, бильярд и прочее при желании покупателя останется. Это идеальный вариант для тех, кто ценит комфорт, простор и уют. Код пользователя: 250027 Номер в базе: 2769338
Прoдам одноэтажный кирпичный дом в коттеджном поселке "Облака". Идеальное расположение с удобной транспортной развязкой обеспечивает экологичную загородную жизнь, при этом быстрый доступ к всей инфраструктуре - магазины, торговые центры, детский сад, школа. Общая площадь 190 кв.м. включает в себя 3 спальни, просторная кухня-гостиная, гардеробная, большой санузел, котельная с зоной постирочной, закрытый гараж. Из гостиной есть отдельный выход на участок, где можно обустроить зону террасы. Дом выполнен из высококачественных материалов, прекрасный вариант для постоянного проживания !!! Дом из керамичeскoго кирпичa c эpкеpoм и гаpaжoм, oтделка Whitе boх - на полу полусухая стяжка, стены подготовлены под финишную отделку, внешняя отделка из облицовочного кирпича. Фундамент дома монолитный железобетонный ленточный. Кровля четырехскатная, покрытая металлочерепицей, толщина 0,5 мм ГОСТ, оконные системы - профиль 70 мм, двухкамерный энергосберегающий стеклопакет. Участок площадью 16,8 соток достаточно большой, чтобы вместить дополнительные постройки, например баню и теплицу, а так же детскую площадку, зону барбекю. В котельной установлен электрокотел, смонтированы теплые полы в кухне, коридоре, с/узле, установлены радиаторы отопления.В дом заведено электричество, вода (колодец), канализация (биостанция). Дом зарегистрирован, присвоен адрес. Документы подготовлены, возможна покупка с использованием семейной ипотеки. Для уточнения деталей и записи на просмотр звоните!!! Код пользователя: 71067 Номер в базе: 2483123
Продаётся шикарный дом в деревне Турутино. Деревня в Вологодском районе Вологодской области. Входит в состав Кубенского сельского поселения, с точки зрения административно-территориального деления - в Борисовский сельсовет. Расстояние до районного центра Вологды по автодороге - 43 км, до центра муниципального образования Кубенского по прямой - 9 км. Недалеко находится Кубенское озеро. Двухэтажный просторный дом 158,5 кв.м отлично подойдёт для большой семьи. В доме находится баня, имеется спутниковое ТВ, интернет. Дом готов к проживанию. Отопление печное + 2 камина. Участок разработан, имеется теплица, пруд. участок 20 соток. Идеальное место для жизни и отдыха. Код пользователя: 154542 Номер в базе: 915570
Уютная дача с разработанным земельным участком ждет вас в деревне Терпеново Кадуйского района. Подходит как для воплощения желаний садовода, так и для непринужденного отдыха. Организовано место для летних посиделок с шашлыками и банька на попариться. Есть место для бассейна. Подробнее? Конечно! Деревянный дом 24,4 квадратных метра на ленточном кирпичном фундаменте с железной крышей из калиброванного бревна, вмещает в себя два этажа. Установлена качественная входная дверь. На первом этаже находится замечательная кухня-веранда с большими окнами, за счёт чего в доме много света даже в пасмурную погоду. Также там находится комната с действующей печкой, на которой можно, при желании, полежать. На полу обоих помещениях ламинат. Второй этаж представляет из себя зону для работы и отдыха - две комнаты, одна из которых проходная. Кстати, отличное место, чтобы организовать собственную библиотеку. Окна по всему дому частично заменены на стеклопакеты. Газификации по деревне нет, зато электричество подведено в каждое здание на участке, поэтому отопление в доме электрическое за счет обогревателя. На свое усмотрение его можно усовершенствовать и установить, например, конвекторы. Водоснабжение идёт от 22 метровой скважины. В дом и в баню не заведено, в связи с чем использовался шланг. Провести трубы место на участке позволяет. Санузел в двух исполнениях: в доме и уличный, что является дополнительным удобством, так как после работы на улице при необходимости не придется бежать в дом. На участке 20,3 соток, огражденном сеткой, находятся такие постройки как гараж на одну машину, действующая качественная баня, летняя беседка с двумя выходами, проходная сарайка и кирпичная картофельная яма. Земельный участок разработан, слегка на склоне, поэтому не топит. Остается поликарбонатная теплица и насаждения: ранняя и поздняя медовая яблони, две груши, крыжовник, вишня, смородина, черноплодка. Для любителей искупаться в двух с половиной километрах находится река Шулма. Рыбакам она, кстати, тоже подойдёт. А для любителей грибов и ягод даже далеко идти не нужно, ведь лес в ста метрах. В общем, есть всё необходимое для душевного отдыха. Документы готовы к продаже. Межевание сделано. Скорей же записывайтесь на просмотр, расскажу и покажу все более детально. Специально для клиентов компании "Этажи" максимальные скидки по ипотеке в банках-партнёрах. Юридическое сопровождение, безопасные расчёты. Работаем честно и открыто! Звоните! Код пользователя: 47472 Номер в базе: 2644186
!! Внимание - Внимание !! У Вас есть уникальная возможность стать обладателем участка в живописном месте Вологодской области! Этот участок площадью 2278 кв.м. расположен в деревне Клепестиха и предназначен для индивидуального жилищного строительства. На территории уже имеется жилой дом общей площадью 131,4 кв.м., построенный в 2016 году. В доме подведено электричество, а на участке есть колодец, дом-баня 34,6 кв.м., гараж, сарай, что обеспечивает комфортное проживание. В шаговой доступности река Кубена. Этот участок идеально подойдет для тех, кто ценит уединение и природу, а также хочет создать собственное уютное жилище вдали от городской суеты. Не упустите свой шанс стать счастливым обладателем этого уникального участка! Код пользователя: 170350 Номер в базе: 954687
Всегда мечтали о своём уголке где бы вы могли приятно проводить время и приглашать друзей на шумные посиделки за шашлыками? тогда это предлдожение для вас. В продаже прекрасный загородный дом 100 м2 в 20 минутах езды от города!!! Дом имеет удобную функциональную планировку: -просторная кухня гостинная 30 метров -три спальни по 11 метров -большой санузел 5 метров А ещё высокие потолки много окон и много света!!! Дом полностью с ремонтом дополнительных вложений не требует он продаётся уже сразу с мебелью и техникой (холодильник, микроволновка, посудомойка, варочная панель, духовой шкаф, вытяжка) можно сразу заехать и жить и радоваться!!! Дом находиться на возвышенности открывается прекрасный вид на всю округу! Сам дом построен на надежном фундаменте из бетонных свай по современной технологии "двойной брус" что гарантирует тепло и надёжность! Тепло и уют обеспечиваются за счёт теплых полов нагреваемых электрическим котлом. Вода скважина, канализация септик. Участок 6,6 соток правильной формы идеально подойдёт для проведения вашего досуга (места под автомобили обустроеннв). Река Вологда в 200 метрах купание и рыбная ловлю круглый год. Деревня Ильинское в шаговой доступности от Молочного со всей возможной инфраструктурой. Деревня полностью газофицирована, газопровод проходит по границе участка. Остались вопросы звоните с удовольствием отвечу на все. Код пользователя: 28295 Номер в базе: 7841271
Продается дом на земельном участке в Андреевской слободе в Харачево. Площадь земельного участка 7 соток. Дом изгововлен из оцилиндрованного бревна диаметром 26 см. Установлен на бетонных сваях. Общая площадь дома 135 квадратных метров. В доме два этажа. Площадь помещений на первом этаже: 25,54, 15,5 и 15,5. Есть открытая веранда. На втором: 37,32; 7,13; 5,12; 5,12; 4,97; 2,16. Вода заведена в дом. Установлен септик. Застройщик "Тарногский лес". Дом под усадку до следующего года. Не зарегистрирован. Код пользователя: 170350 Номер в базе: 480340
Арт. 95538250 Это будет самый лучший Ваш Новый Год!!)))Свой дом,своя баня))Свои елки)) Мы ждем именно Вас. Уютный двухэтажный просторный дом,для Вашей прекрасной большой семьи. Всего 30 км от Вологды.Не спеша ехать 40 минут по хорошей дороге. Спокойное,уютное,душевное,красивое место для отдыха и для постоянного проживания Возможность постоянной регистрации. Дом -бревно 219.6 квадратов-участок 21 сотка ,кадастровый номер 32:28:0201043:20 (хорошая баня,пруд сразу при выходе у бани) По всему участку проложены дорожки из брусчатки,светильники,скамейки для отдыха,мангальная зона. Множество плодовых кустов деревьев,много цветов,большая теплица. Баня площадь 25кв с комнатой отдыха, помывочная я и парная. Вся мебель,техника остается для Вас-просто заезжайте и живите. Полная ведение сделки под ключ. Покажем в любое Ваше удобное время. Сейчас самый сезон,ваше прекрасное время начнется с этого дома. Ключики на руках покажем в удобное время.
Представляем Вашему вниманию отличный вариант как для семейного загородного отдыха так и для постоянного проживания. Дом 2025 года постройки. Приусадебный участок, общей площадью 707 кв.м, оформлен в собственность, расположен в живописном месте, в деревне Зимняк, на второй береговой линии реки Лежа. Лес, грибы, ягоды, охота - все в шаговой доступности. Дом двухэтажный из профилированного бруса площадью 94,6 кв.м, установлены пластиковые окна, крыша дома и хоз.построек покрыта металлочерепицей. На участке имеется баня (с парным и моечным отделением и комнатой отдыха), дровенник, колодец. В доме и бане завершена внутренняя отделка, ведутся работы по установке водопровода и канализации, электричество разведено. Участок огорожен забором. Дом не требует дополнительных вложений, заезжай и живи! Деревня жилая круглый год, дорога хорошая, ходят рейсовые автобусы. Код пользователя: 28078 Номер в базе: 7813415
Код объекта: 1675015. Продаётся тёплый, уютный, красивый дом из качественных материалов - сборных полистиролбетонных плит. Отличная локация для тех, кто хочет жить и в индивидуальном доме на природе, и в то же время в шаговой доступности от города ( на машине 15 минут!) п.Песочное расположен на берегу Кубенского озера - излюбленное место отдыхающих и любителей рыбной ловли. До воды от дома около 1000 м. Общая площадь 120 кв.м. Удобная планировка : спальня 12,1 м кв, детская 9 м кв, зал- гостиная 21 м кв, кухня 12 кв.м, тех помещение - бойлерная 5.5 кв.м. В доме есть гаражное ромещение 24,5 м.кв Полистеролбетон - это современный строительный материал, который ещё называют теплобетон. Сами плиты созданы из смеси полистироловых шариков и прочного бетона, они обладают большой прочностью, максимально сохраняют тепло, отличная шумоизоляция, мало подвержены природным воздействиям, не впитывают влагу, сертифицированный экологически чистый материал(есть Фундамент дома - плита. Все коммуникации в доме : канализация (септик), водопровод ( скважина), отопление ( газ), электричество. В доме выполнен евроремонт, тёплые полы, стены- обои, потолки натяжные, санузел - в плитке. Дом расположен на участке правильной формы, выравнен, разработан, есть декоративные и плодово-ягодные посадки. Участок огорожен забором из металлопрофиля с откатными воротами, перед домом уложена брусчатка. Дом готов к проживанию. Внешнюю отделку дома можно выполнить по своему усмотрению. Инфраструктура находиться в ближайшем населённом пункте - село Кубенское : супермаркеты, специализированные магазины, школа, детский сад, медицинский пункт, дом культуры, спортивный стадион, детские игровые площадки. До с.Кубенское не более 3х км, до п.Песочное ходит рейсовый автобус. Такой дом, где учтено всё до мелочей - отличное приобретение для практичных и правильных людей, ценящих свою жизнь и жизнь своих близких! В доме остаётся в качестве подарка будущему владельцу кухонный гарнитур! Просмотры в любое удобное для Вас время, по предварительной договорённости. Реальному покупателю ТОРГ! Есть возможность доделать фасадные работы на Ваш вкус и бюджет!
Готовый жилой дом в Тотьме общей площадью 102,5 кв. м представляет собой современное и энергоэффективное решение для круглогодичного проживания. Объект возведен из качественного бруса сечением 160 мм на надежном фундаменте из дорожных плит и блоков, что гарантирует высокую теплоэффективность и низкие эксплуатационные расходы. Инженерное оснащение включает центральное водоснабжение с подачей чистой воды из скважины, двухконтурный газовый котел корейского производства для отопления и горячего водоснабжения, а также автономную канализацию на основе биосептика. К дому примыкают просторная веранда и крыльцо. Земельный участок площадью 16 соток с установленными границами и назначением под ИЖС дополнен полезными хозяйственными постройками: баней из бруса и каркасным сараем-дровяником. Все объекты зарегистрированы в собственности, отсутствуют обременения и долги, возможна покупка с использованием ипотеки или материнского капитала. Расположение обеспечивает быстрый доступ ко всей инфраструктуре города Тотьма, при этом дом находится в спокойной обстановке. Значительным преимуществом является близость к природным и историческим достопримечательностям, включая набережную реки Сухоны, что делает этот объект привлекательным как для постоянного проживания, так и для использования в качестве загородной резиденции. Код пользователя: 28087 Номер в базе: 9819783
Покупай сейчас - плати потом! На данный объект доступна рассрочка на выгодных условиях Кирпичный коттедж площадью 200 м² расположен на участке 10 соток в тихом живописном месте в 55 км от города. Дом построен в 1994 году, имеет два этажа: первый с полноценными комнатами и второй мансардный, что позволяет эффективно использовать пространство. Толщина стен 70 см обеспечивает хорошую теплоизоляцию. В здании есть цокольный этаж и подземный гараж, что добавляет полезной площади. Территория вокруг дома благоустроена — выполнено бетонирование, оборудованы ливневые стоки. Участок находится в зоне индивидуального жилищного строительства (ИЖС), что дает возможность свободного распоряжения землей. Дорога в Абакановском направлении асфальтирована, лишь последние 3,7 км — грунтовые. Остановка общественного транспорта в 5 км. Это место отличается уединенностью — вокруг лес, что создает ощущение жизни на природе. Зимой дороги чистятся, есть круглогодичные жители, поэтому инфраструктура поддерживается. Дом требует ремонта, но имеет крепкую основу: кирпичные стены, надежную кровлю, продуманную планировку. Наличие гаража и цокольного этажа расширяет возможности использования — можно обустроить мастерскую, кладовые или дополнительную жилую зону. Участок позволяет разбить сад, организовать зону отдыха или даже небольшую ферму. Возможен торг. Также возможен вариант покупки в ипотеку. Это хорошая возможность приобрести просторный дом в экологически чистом месте с перспективой создания комфортного жилья под свои потребности. Код пользователя: 98796 Номер в базе: 7832499
id:4012. Вы мечтаете о своем доме? Ваша мечта может стать реальностью! В продаже просторный жилой дом с земельным участком 10 соток в п. Нижне -Кубенский Кубенского с/п Харовского района Вологодской области. Общая площадь дома - 97,6 кв.м. - Жилой дом. - Материал стен - брусчатые. - Фундамент - лента. - В доме 5 комнат и кухня. -Русская печь. ходится в 22 км от города Харовска, есть транспортное сообщение, рядом река Кубена. Грибные и ягодные места в шаговой доступности. Отличное место для охоты и рыбалки. Работаем со всеми видами сертификатов, подберем ипотечную программу, обеспечим юридическим сопровождением на всех этапах сделки. Заинтересовало? Звоните уже сегодня и записывайтесь на просмотр!
ПОДХОДИТ ПОД СЕМЕЙНУЮ ИПОТЕКУ 6% В пpодаже oтличный новый oдноэтажный, очень теплый и уютный дом cо вceми нeoбхoдимыми кoммуникациями для кoмфopтнoгo проживания. Hаxoдитcя нa учacтке в 11 соток в экологичecки чистом мecтe в пoceлке Hoвая Сocновкa. Из окон вид на пoля и леca. Рядoм eсть peка! Bся необxoдимая инфрастpуктуpa в пешeй доступности - магазины, поликлиника, стоматология, автосервис, школа и детский сад. Также ходит школьный автобус! В доме три спальни, просторная зонированная кухня-гостиная, бойлерная, прихожая, ванная и гараж. Дом сдается полностью готовым для проживания с благоустройством территории. Останется только расставить мебель! Данный объект доступен для покупки в семейную ипотеку, через ЭСКРОУ счет. Возможно использовать материнский капитал. Код пользователя: 143132 Номер в базе: 889441
























































































