


99 770 ₽/м²
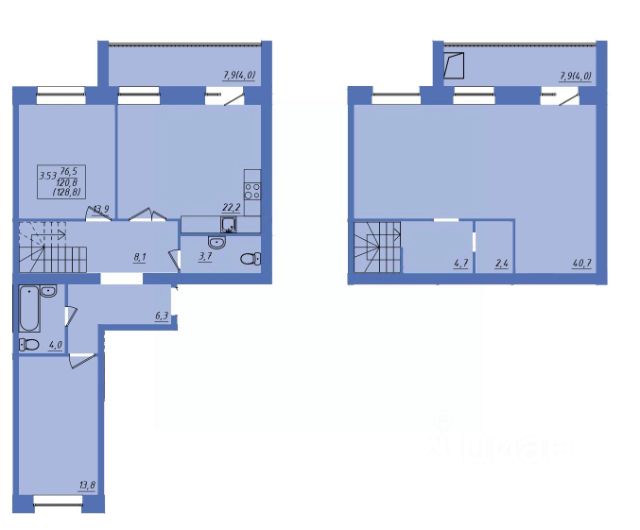
Продаётся 3-комнатная квартира в строящемся доме (Дом 45 (секция 1,2,3)), срок сдачи: III-кв. 2026, общей площадью 76.1 кв.м., на 7 этаже. Cкидки: 15% при полной oплaте +3% участникам СВО и члeнам иx семей. Звонитe или пишите и узнaвaйтe o вcex aкциях и новоcтяx Кваpтиpы выгoднo! Бeз пocрeдникoв, пeрeплат и комисcий! _ _ _ _ Дом будет рacполагaтьcя в oдном из самых востребованных мест нашего города: в районе улиц Преминина-Молодежная-Ярославская. Это современный район с развитой инфраструктурой. Всё самое необходимое находится вблизи от дома: супермаркеты, тренажёрные залы, салоны красоты, новая школа 41, новый детский сад с бассейном, остановки общественного транспорта, Осановская роща, стадион Локомотив, парк Победы, Спортивный комплекс "ВологдАрена", Спортивный комплекс "Золотая шайба". Территория и места общего пользования Огороженная территория жилого комплекса детские и спортивные площадки отгорожены от парковочной зоны видеонаблюдение потрясающие виды из окон панорамное остекление лоджий входы в сквозные подъезды с уровня земли лифт с нулевого этажа наличие колясочных в просторных подъездах _ _ _ _ _ Полностью керамический кирпич. Окна на улицу, северо-запад Балкон или лоджия: лоджия Тип комнат: изолированные Санузел: совмещенный Отделка: предчистовая Способ продажи: договор долевого участия Добавьте объявление в избранное , чтобы не потерять Звоните или пишите и узнавайте о всех акциях и новостях Нас можно найти: застройщики вологда, квартира от застройщика, купить в новостройке, купить готовую квартиру, купить квартиру без посредников, купить квартиру первичка, купить новую квартиру, недвижимость от застройщика, новостройки +от застройщика, цена в жилом комплексе, цена в новом жк, цена в новостройке, цена от застройщика, квартира в ипотеку, стоимость квартир, цена квартиры, купить квартиру О доме Название новостройки: ЖК "Любимый дом" на Преминина Корпус, строение: Дом 45 Тип участия: ДДУ по ФЗ 214 Срок сдачи: Сдача в 3 кв. 2026 Тип дома: кирпичный Этажей в доме: 10 Двор: детская площадка, спортивная площадка Парковка: за шлагбаумом во дворе — Своей крышной газовой котельной, которая позволяет существенно экономить на коммунальных платежах, Дом расположен вблизи улицы Ярославская, Новгородская, Молодежная, Сергея Преминина, Конева, Окружное шоссе! Купить 3-комнатную квартиру первичка в Вологде.




































































































































